本文へスキップ

M&K建築事務所有限会社は建築物の設計監理を専門とする一級建築士事務所です。

TEL. 055-279-3117

〒400-0118 山梨県甲斐市竜王1743

   

小荒間の別荘  田舎暮らし−T
 家族の絆・子供の独立心を育てる場所。

                                                 ページ:    
   
  
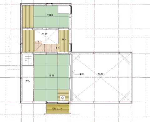
 2F
1F

平 面 図

18帖(4間半×2間)の居間食堂・台所・図書コーナーの約半分は吹き抜けて2階の寝室と視覚的につながり室内を広く感じさせています。ストーブによる熱が効率的に廻るようにも考えています。南側の2間開口と北の1間開口は外とのつながりを意識してデッキテラスから室内を見ると後ろにモミの木が見えるようになっています。デッキから庭に直接降りる階段は、近所の方が見えた時にはここから来られてデッキのベンチに腰掛けてお茶などを頂きながら庭の手入れのお話をしています。第二の玄関ですね。
玄関は超コンパンクトで、室内床と同レベルで材質がタイルで靴脱ぎあるいは靴置き場という扱いです。階段の途中踊り場にトイレを配置して、洗面脱衣・浴室を含め4坪(8帖分)に納っています。でも狭く感じませんよ。階段を上ると2部屋をつなぐ廊下があり、そこの窓からはモミの木の幹が見えてきます。6帖の畳の寝室は居間食堂の吹抜けに面して広がりがあります。南面の窓はバルコニーがあり窓に腰掛けて展望台の様に見渡す事が出来ます。北側の予備室は隠れ家のような独立した感じの場所で、北窓からは八ヶ岳が東窓からはモミの木が見えます。この部屋の奥にはにじり口の様な小さな引き戸があり、開けて入ると1帖の板の間が階段吹き抜けに面してあります。小さいけれど変化に富んだこの空間は好奇心をくすぐり、都会の日常とは全く違う自然とのつながりにより、癒しや穏やかな心を取り戻せる場所となっています。

 居間・食堂
  障子、ガラス戸、網戸、雨戸は全て引込まれます


建築概要

所在地  山梨県北杜市長坂町 
主要用途 専用住宅(別荘)
家 族  夫婦+子供2人+両親
施 工  鈴木建築
構造規模 木造2階建て
敷地面積 421.54u(127.51坪)
建築面積   50.73u
延べ床面積 68.95u
設計期間 平成19年8月〜平成20年4月
工事期間 平成20年6月〜平成20年12月

おもな外部仕上げ
屋 根  ガルバリュウム鋼板
外 壁  杉板押し縁押え
開口部  木製建具、アルミサッシ

おもな内部仕上げ
居間・食堂・台所・図書コーナー・玄関
床    杉板t30本実
壁    杉板t12本実
天井   杉板t12本実
2階寝室(畳の間)
床    琉球畳
壁    杉板t12本実
天井   杉板t12本実
浴室
TOTOハーフユニットバス
壁    檜板t12本実
天井   檜板t12本実

おもな設備
給湯   ガス給湯器(室内設置FF式)
暖房   灯油式FF暖房機(床下設置)
     薪ストーブ
水抜き  電動式水抜き弁

                      
   檜板のハーフユニットバス          2階寝室入口            居間吹き抜けに面した寝室            寝室入口

 引き戸により閉じることで、繋がっていた部屋が緩やかに仕切られる”日本独特の個室化”完全な仕切りでない空気も声もつながり視覚的にだけ独立した仕切り方。
仕切るのとは別に、簡単時取り外しができるので外してみるとこれはまた今までと違う一体感のある、さらに広がりを感じる空間の誕生、新鮮な驚きと解放感が生まれる。四季の変化に応じて、暖かくなったら開放的に開き風を通して空気を感じる。寒くなってきたら閉じて入ってっくる日の光や薪の炎を楽しむ。大人が楽しめば子供も自然と感じて喜ぶ。小さな家で生まれる小さな喜びに幸福が宿ると思います。
                                                                 このページの先頭へ