本文へスキップ

M&K建築事務所有限会社は建築物の設計監理を専門とする一級建築士事務所です。

   

竜王の書庫
 既存倉庫を改修して書庫(資料室)にしました

                                                   ページ:    
befor

befor

     既存倉庫

金属サイディングの外壁にアルミサッシとスチールシャッター、屋根はルーフデッキ
2階建で一部吹抜けている。

倉庫で利用していた建物を書庫(使用室)に変更
鉄骨造の外壁を取り払い下地胴縁をなるべく生かし最小限の
開口部を取付た、日中の自然光で資料が読めるような明るさ
を確保。もともと階高も低く天井高さは2mほど、座って心
地良い程度の高さになった。吹抜け部分は狭いが心地よい 

改修工事の安全祈願祭を行った

内部は鉄骨と外壁の裏側を表しのままで、横胴縁とブレースが見える
床は土間コンクリートのまま、天井はなくルーフデッキが表しのまま

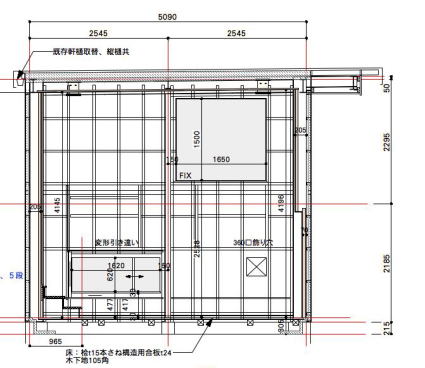
改修するに当たり、なるべく既存の胴縁を活かしながら開口部を設けて
胴縁に構造用合板を外張りし、内部は吹付断熱、外部は化粧サイディングと杉板の構成とした。内部は軽鉄下地にPB下地で塗装仕上げとした
床は下地組して30cm程上げて杉板張とし、お茶の飲める程度の水回りとトイレを設けた。建物の南側には住宅が隣接しているので東西と北の3方向に比較的大きな開口部もを受け南側の開口部は本棚の上部に横長の内倒しサッシで自然換気用と割り切った。
    

  断面図-1                                   断面図-2

   胴縁・ブレースを活かした開口部の設定                            実験的に西面に大きな開口を設けた






                                                                 このページの先頭へ