本文へスキップ

M&K建築事務所有限会社は建築物の設計監理を専門とする一級建築士事務所です。

TEL. 055-279-3117

〒400-0118 山梨県甲斐市竜王1743

   

ビフォー・アフター−U  南アルプスの家
 室内のリフォームだけでも、耐震性能・断熱性能・気密性能が格段に良くなります。

                                                  ページ:     
  

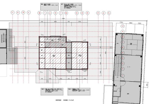
既存2階平面図(ビフォー)

階段と廊下それに2つの寝室(畳の部屋)


改修2階平面図(アフター)
 外部はそのままで、内装を全て取り外し階段を取り換え、断熱材と気密材を取り付け、床を杉板に張り替え壁天井を左官塗り壁(薩摩中霧島壁)として、トイレを設けた。
 







既存の床・壁・天井を撤去した状況

内部の仕上げを撤去しますと現れてきたのは、健全な部分と不具合のある部分でした。シロアリにより傷んだ部分、湿気により腐った部分、内部結露によりカビの発生した部分を上記に記載しました。
対策としては取り除き新しい木材と取り替えました。


        
   耐震補強           防湿コンクリートに床下配管       2階断熱気密工事           床下断熱・耐震補強

        
     玄関収納      改修した階段、壁をとり明るく段数を増やし登り易くなりました      トイレの手洗い        ワークスペース


部分的に前の記憶を残しながら、明るさと風通しを考慮して使い勝手のよい ゆとりのある空間に生まれ変わり、無垢の杉床材や左官壁の素材が持つ調湿性や質感が、断熱や気密の性能が上がることで、相乗効果的に気持ちの良さを増幅しているようです。『素足で生活する気持ちよさ』、『寝転ぶ気持ちよさ』等、いままで意識しなかった感覚が呼び覚まされるような感じがすると、おっしゃっていたのが印象的でした。
                                                                  このページの先頭へ
5*