本文へスキップ

M&K建築事務所有限会社は建築物の設計監理を専門とする一級建築士事務所です。

TEL. 055-279-3117

〒400-0118 山梨県甲斐市竜王1743

   

ワークスペースを考える:掃除・洗濯・収納を快適にする
 

                                                  

洗濯物を洗濯して干して乾燥させて、収納する。そして使って、脱いで一時的に溜めて。それを繰り返す。

    

                            

         
  
■洗濯して干して乾燥させて、たたんで収納。花粉症の私の洗濯物を妻は室内干ししてくれています。

■ほぼ毎日入浴しますから、洗濯物が脱衣室で発生。脱衣駕籠の中で翌朝選別されて洗濯されます。仕事着で帰宅しますと、寝室で部屋着に着替えて靴下・ワイシャツ等洗濯もの発生。寝室の脱衣駕籠に。作業や運動しますと、着た物一式洗濯物発生。子供達も同じように洗濯物発生しますね。

■干す場所は軒下で日が当たり風通しが良い場所が最適、室内干しが出来るところが一緒にあることがもっと良い。洗濯物を取り入れながら一時的におく事が出来て、広げてたためて収納できるのが良い。
                                                          このページの先頭へ


    

  土間のワークスペースに洗濯機を置いてその外に屋根付き物干し         洗濯機・作業台・流し・収納付ワークスペース、洗濯物は外の軒下干し

        

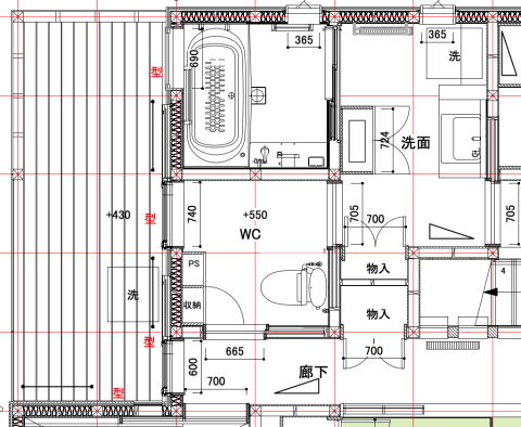
  台所から廊下を経て洗面脱衣・物干しテラスまでがワークスペース      



  洗面脱衣に隣接した洗濯物干し(ワークスペース)